Property Type
Townhome, 2 Storey
Parking
Stall,Titled , Stall,Titled 1 parking
MLS #
A2267545
Size
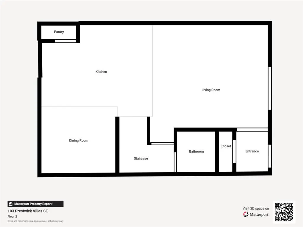
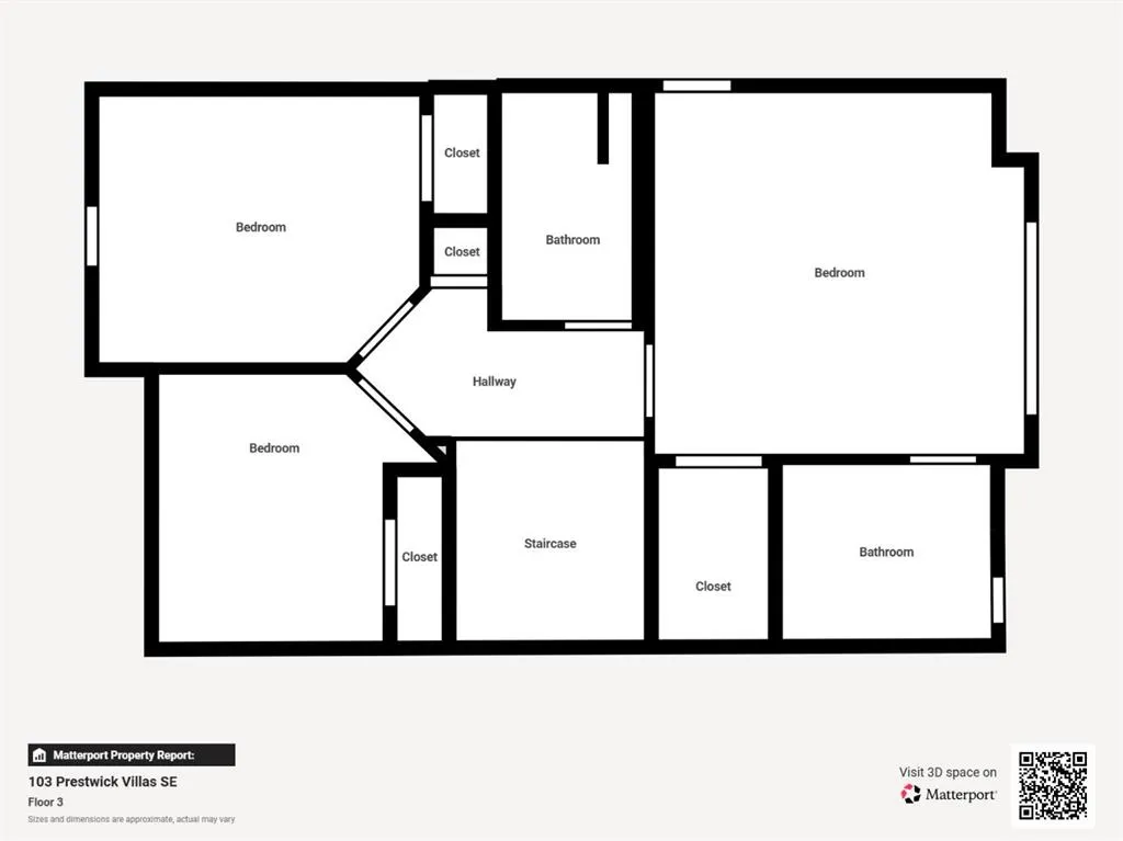
1271.33 sqft
Basement
Full
Listed on
-
Lot size
-
Days on Market
-
Year Built
2008
Maintenance Fee
$348.46/mo
